給料喂料設備
13837349928
一、產品介紹
GZG系列電機振動給料機是利用兩臺偏心振動電機的同步原理,產生與水平面成60°角的合力,通過雙振動電機的周期振動,從而推動給料槽內的物料作拋擲或滑行運動,達到把顆粒狀,小塊狀及粉狀物料從貯料倉中均勻、定量,連續地給到受料設備中,在砂石生產線中可為破碎機械連續均勻地喂料,并對物料進行粗篩分。
二、產品特點
1.振動平穩、工作可靠、壽命長。
2.可以調節激振力,可隨時改變和控制流量,調節方便穩定。
3.振動電機為激振源,噪聲低、耗電小、調節性能好,無沖料現象。
4.結構簡單、運行可靠、調節安裝方便、重量輕、體積小、維護保養方便,當采用封閉式結構機身時可防止粉塵污染。
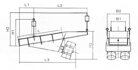
三、產品結構

四、應用范圍
GZG系列電機振動給料機適用于顆粒狀,小塊狀及粉狀物料的均勻給料,廣泛應用于冶金、煤炭、化工、建材、陶瓷、磨料、機械輕工業等行業的破碎、篩分自動配料、定量包裝及自動控制給料環節上。
五、產品參數

公司產品廣銷全國多個省市地區,產品獲得廣大客戶好評
秉持“專一、專注”的精神,提供匠心產品,服務全球千萬用戶
實力雄厚 · 設備優良 · 質量保證 · 用戶至上 · 合作共贏
13837349928
掃一掃 關注我們